{{n}} di {{numads}}
{{n}} di {{numads}}

Prezzo € 225.000
Rata Mutuo € 1.049 *

Rata Mutuo € 1.049,22*

La tua rata € {{ratamaxmenu}}*

Prezzo immobile € 225.000

Mq 70   |   Locali 2   |   Bagni 1   |   Piano 1

DESCRIZIONE IMMOBILE

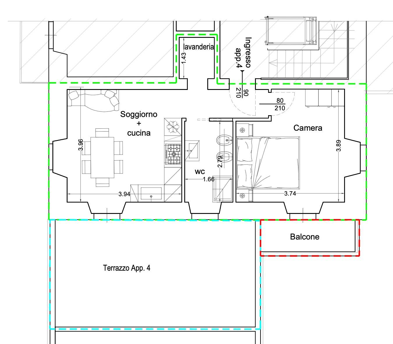
In posizione centrale e servita, appartamento di nuova costruzione posto al piano primo delle dimensioni di circa 54 mq composto di ingresso su soggiorno con angolo cottura e terrazzo vivibile delle dimensioni di circa 27 mq, disimpegno nel reparto notte, una camera da letto matrimoniale, un bagno con finestra, un ripostiglio/lavanderia ed un balcone posto al servizio del reparto notte. L\'immobil... ( leggi di più )

In posizione centrale e servita, appartamento di nuova costruzione posto al piano primo delle dimensioni di circa 54 mq composto di ingresso su soggiorno con angolo cottura e terrazzo vivibile delle dimensioni di circa 27 mq, disimpegno nel reparto notte, una camera da letto matrimoniale, un bagno con finestra, un ripostiglio/lavanderia ed un balcone posto al servizio del reparto notte. L\'immobile, in corso di ultimazione, è caratterizzato da un estetica elegante e signorile, nonché da impiantistica mirata al massimo risparmio energetico. L\'appartamento sarà inoltre rifinito con materiali di alta qualità e possibilità di personalizzazione delle finiture interne a scelta dell\'acquirente. Ottima opportunità, con possibilità di acquisto di garage o posto auto con prezzo da computare a parte. ( leggi di meno )

CERCA IL TUO MUTUO IDEALE

CONFRONTA. SCEGLI. VERIFICA.

Compara i prodotti di 12 Banche e verifica la fattibilità online, gratuitamente e senza impegno!

CARATTERISTICHE E SERVIZI

  • Id Annuncio 87977
  • Contratto Vendita
  • Cucina Non specificato
  • Piano Primo
  • Classe energetica A
  • Camere da letto 1
  • Bagni 1
  • Locali 2
  • Area 70 m²

ALTRE CARATTERISTICHE

ANNUNCI SIMILI

ANNUNCI IMMOBILIARI A Grottammare E DINTORNI

* La rata indicata è il risultato di un calcolo algoritmico eseguito, con il miglior tasso disponibile, sulla base dei dati forniti. L'importo è meramente esemplificativo ed è calcolato sulla base di dati indicativi riferiti alla concessione di un mutuo con finalità di acquisto prima casa dalla durata di 30 anni, con LTV che varia in base all'anticipo indicato dall'utente, e a tasso fisso. L’ammontare effettivo della rata potrà esserti confermato o ricalcolato in funzione dei parametri delle banche e/o di altri finanziatori. Messaggio pubblicitario con finalità promozionali, offerte soggette ad approvazione dell'istituto erogante. Per avere maggiori informazioni sulle condizioni economiche e contrattuali consultare la pagina www.vivoqui.it/trasparenza. Vivoqui.it è di proprietà di Semplicemutuo S.r.l., società di mediazione creditizia iscritta OAM al n° M526. Può agire in qualità di mediatore convenzionato o non convenzionato con Istituti di Credito e opera intermediando prodotti di più Soggetti Finanziatori.


Questo sito usa cookie interni e di terze parti per migliorare l'esperienza dell'utente. Se accetti l'uso dei cookie continua a navigare o clicca su "Accetto".   Informazioni

Ciao!
Come possiamo aiutarti?